安全溢流阀 安全溢流阀在系统中起安全保护作用。当系统压力超过规定值时,安全阀汀开,将系统中的一部分气体排入大气,使系统压力不超过允许值,从而保证系统不因压力过高而发生事故。安全溢流阀的主要参数是排量,这个排量决定于阀座的口径和阀瓣的开启高度,由开启高度不同,又分为微启式和全启式两种。微启式是指阀瓣的开启高度为阀座喉径的1/40~l/20。全启式是指阀瓣的开启高度为阀座喉径的1/4。 安全溢流阀适用于城建、化工、冶金、石油、制药、食品、饮料、环保 安全溢流阀型号:AY42H、YA802Y | 安全溢流阀公称通径:15MM-40MM | 安全溢流阀 使用压力:16MPA-60MPA | 安全溢流阀连接方式:法兰连接.螺纹连接 | 安全溢流阀 形式:弹簧式 | 安全溢流阀主要功能:泄压保护作用 | 安全溢流阀 使用介质:水工业管道 | 安全溢流阀材质:铸钢.不锈钢 | 安全溢流阀标准:机械部标准或定做非标 |

AY42H、YA802Y型主要性能规范 型号 | 公称压力 | 开启压力分级 | 工作温度(℃) | 适用介质 | AY42H-160 YA802Y-160 | 16.0 | 6.3~16.0 | 200 | 水、油品等 | AY42H-250 YA802Y-250 | 25.0 | 10.0~25.0 | AY42H-400 YA802Y-400 YA802Y-600 | 40.0-60.0 | 20.0~60.0 |
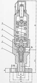
AY42H、YA802Y安全溢流阀主要零部件材料 NO. | 零件名称 | 材料 | 1 | 阀体 | 碳钢 | 2 | 阀座 | 不锈钢 | 3 | 阀瓣 | 不锈钢 | 4 | 阀盖 | 焊接件 | 5 | 弹簧 | 50CrVA |
AY42H、YA802Y安全溢流阀外形尺寸和连接尺寸 
型号 | 公称通径 | 尺寸 | Rc | ZG | L | L1 | ≈H | YA802Y-600 | 15 | 1/2" | 1/2" | 52 | 90 | 250 | 25 | 1" | 1" | 52 | 113 | 275 | 40 | 11/2" | 11/2" | 52 | 157 | 336 |

型号 | 公称通径 | 尺寸 | D | D1 | K | M | Z-?d | b | L | L1 | Rc | ≈H | AY42H-160 AY42H-250 AY42H-400 | 15 | 135 | 95 | 25 | M48×2 | 4-22 | 25 | 65 | 140 | 1/2" | 329 | 25 | 165 | 115 | 30 | M52×2 | 6-26 | 28 | 80 | 150 | 1" | 447 | 25 | 200 | 145 | 38 | M80×3 | 6-29 | 40 | 90 | 180 | 11/2" | 485 | 32 | 225 | 170 | 42 | M100×3 | 6-33 | 50 | 100 | 200 | 21/2" | 570 |
安全阀订货主要事项: 安全阀介质, 压力等级,开启方式(全启/微启)设定起跳压力,确定阀门尺寸,连接方式,标准zui大耐温,释放流量/每小时,阀体材质,内部阀体结构,工作原理,安装说明等相关技术资料.安全阀 选型主要依据就是(起跳压力及整齐压力流量温度)口径一般设计院会给出,而实际上通过蒸汽压力,流量及起跳压力,可以推测出安全阀 的尺寸.一般会比设计院所选出的口径小一号.当使用的场合非常重要或环境比较复杂时,请您尽量提供设计图纸和详细参数,由我们的三精阀门公司专家为您审核把关。感谢您访问我们的 |